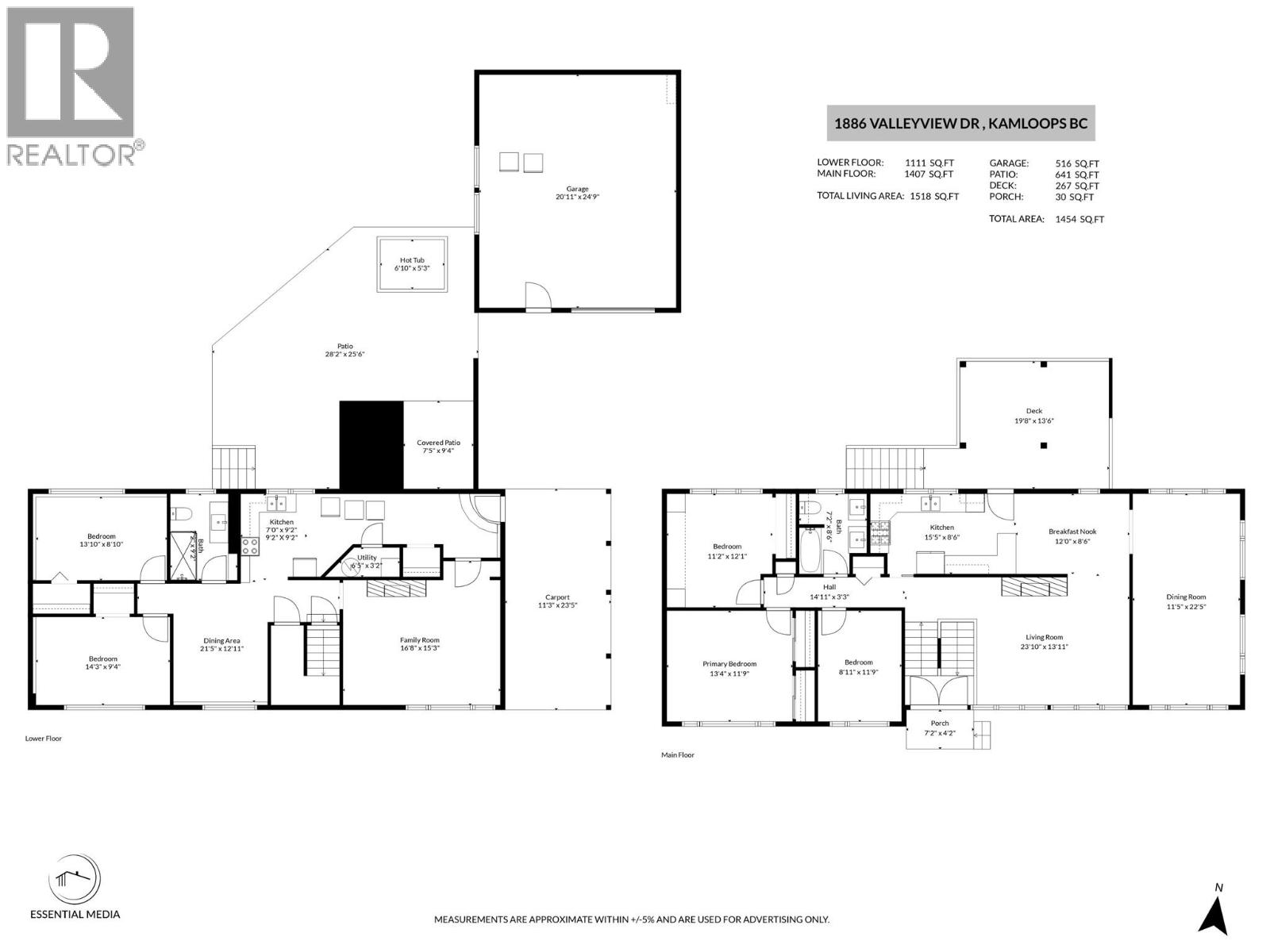
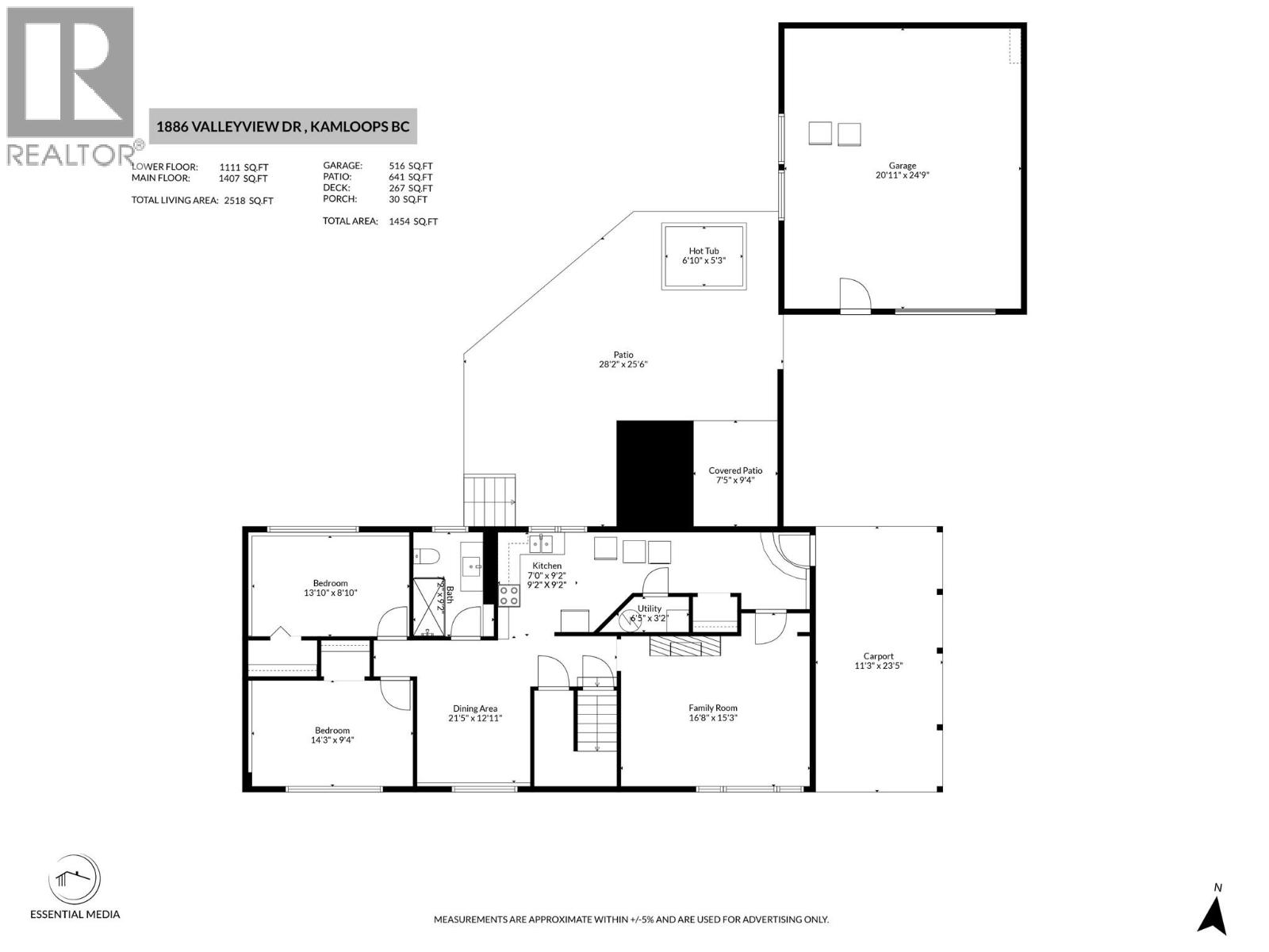
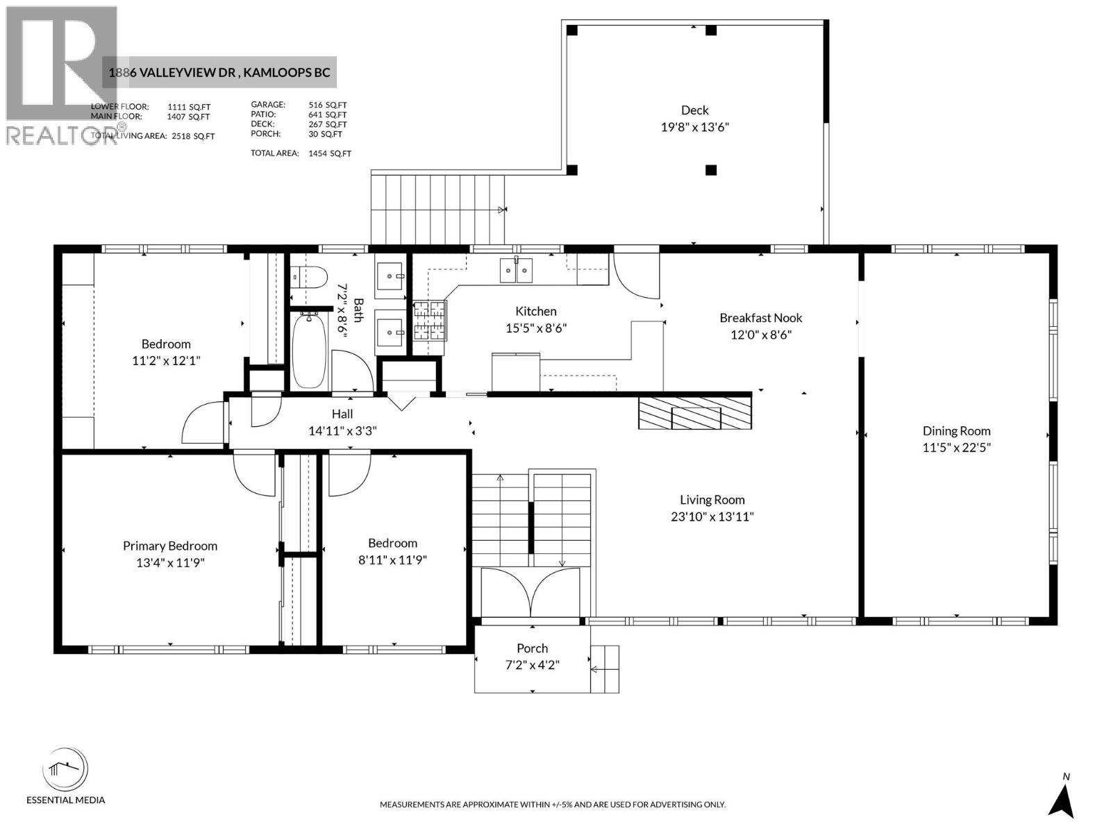
1886 Valleyview Drive Kamloops, British Columbia V2C 4B9

5 Bedroom 2 Bathroom 2,488 ft2
Fireplace Central Air Conditioning Forced Air, See Remarks Landscaped, Level

$799,900

Centrally located, updated Valleyview home with a 2-bedrm in-law suite & detached shop. As you walk into this home, you’ll find HW flooring throughout most of the main-floor living areas. There’s plenty of living space on this floor, including a large living room with a south-facing picture window, an updated kitchen with new cabinet doors & a stunning hexagon backsplash, & an additional nook/sitting area. There’s also a spacious dining room that could easily function as a family room/kids’ play area. There’s also 3 good-sized bedrooms & an updated 4-pc bath. Step off the kitchen onto the private back deck & enjoy the stunning views. The basement includes a 2-bedroom mortgage helper, making it an excellent opportunity for extra income/multi-generational living. The suite has a large living & dining area, with the dining space also suitable for a home office. The bedrooms are generously sized, & there’s an updated 3-pc bath. The suite currently shares laundry with the main & isn’t fully separated; however, it could easily be made self-contained. The yard has seen several upgrades, including nicely landscaped areas, an updated fence on 1 side, & low-maintenance xeriscaping. Mature lilac trees provide excellent privacy. Located in a central area close to all amenities, schools, & public transit. The detached shop includes its own heat source & 220 power. The shop roof is approx 5 yrs old, & the house roof is approximately 10 yrs old. Day-before notice required for showings. (id:63869)

Property Details

MLS® Number 10375991
Property Type Single Family
Neigbourhood Valleyview
Amenities Near By Public Transit, Park, Recreation, Schools, Shopping
Community Features Family Oriented
Features Level Lot, Balcony
Parking Space Total 6
View Type Mountain View

Building

Bathroom Total 2
Bedrooms Total 5
Appliances Range, Refrigerator, Dishwasher, Microwave, Washer & Dryer
Basement Type Full
Constructed Date 1965
Construction Style Attachment Detached
Cooling Type Central Air Conditioning
Exterior Finish Stucco
Fireplace Fuel Wood
Fireplace Present Yes
Fireplace Total 2
Fireplace Type Conventional
Flooring Type Carpeted, Ceramic Tile, Hardwood, Mixed Flooring
Heating Type Forced Air, See Remarks
Roof Material Asphalt Shingle
Roof Style Unknown
Stories Total 2
Size Interior 2,488 Ft2
Type House
Utility Water Municipal Water

Parking

Additional Parking
Carport
Detached Garage 2
R V 1

Land

Access Type Easy Access
Acreage No
Land Amenities Public Transit, Park, Recreation, Schools, Shopping
Landscape Features Landscaped, Level
Sewer Municipal Sewage System
Size Irregular 0.17
Size Total 0.17 Ac|under 1 Acre
Size Total Text 0.17 Ac|under 1 Acre

Rooms

Level Type Dimensions
Basement 3pc Bathroom 8'1'' x 5'10''
Basement Laundry Room 5'10'' x 9'
Basement Foyer 5'10'' x 7'
Main Level Bedroom 11'1'' x 8'2''
Main Level Bedroom 10'2'' x 10'3''
Main Level Primary Bedroom 11'2'' x 12'10''
Main Level Kitchen 8'8'' x 16'
Main Level Dining Nook 8'10'' x 11'8''
Main Level Dining Room 11' x 22'9''
Main Level Living Room 13'7'' x 16'6''
Main Level Foyer 4'4'' x 7'
Main Level 4pc Bathroom 8'9'' x 7'1''
Additional Accommodation Bedroom 7'2'' x 13'
Additional Accommodation Bedroom 9'11'' x 13'2''
Additional Accommodation Dining Room 9'10'' x 13'5''
Additional Accommodation Kitchen 7'9'' x 11'8''
Additional Accommodation Living Room 16'6'' x 13'1''

Utilities

Cable Available
Electricity Available
Natural Gas Available
Telephone Available
Sewer Available
Water Available

https://www.realtor.ca/real-estate/29360104/1886-valleyview-drive-kamloops-valleyview

Contact Us

Contact us for more information

Generating Captcha

Kirsten Mason
Personal Real Estate Corporation

(250) 377-3279
m.facebook.com/100064202045154/
www.instagram.com/kirsten_mason_kamloops_realtor/
www.enjoykamloops.com/kirstenmasonreviewstestimonials.html

Century 21 Assurance Realty Ltd
7 - 1315 Summit Dr.
Kamloops, British Columbia V2C 5R9

(250) 869-0101
assurancerealty.c21.ca/

Gillian Yaron-Lillow

(250) 851-1367

Century 21 Assurance Realty Ltd
7 - 1315 Summit Dr.
Kamloops, British Columbia V2C 5R9

(250) 869-0101
assurancerealty.c21.ca/