5 Bedroom
4 Bathroom
4,354 ft2
Fireplace
Baseboard Heaters, See Remarks
Acreage
$924,000
Traditional country styled home siting on 81 acres just west of Rock Creek. The over height ceilings and wrap around deck given the home an open, airy and cool atmosphere especially in the summer. The main floor has a large kitchen w/ breakfast area, formal dinning room extending into the living room, front hall way, office/flex room, a family room with wood stove, 3 piece bath and large laundry / foyer area. The master bedroom suite upstairs has a huge ensuite bathroom to enjoy, plus there are 2 additional bedrooms, main bath and sitting area. There is also a full basement with 2 additional bedrooms, bath, rec room and an unfinished workshop area if you wanted to make into a kitchen area and use as a BnB, rental or extended family. Property is fully fenced. Wonderful sunsets and good sun all day. Private home site on an upper bench. Home and garden area serviced by a shallow well with newer UV filter, and water softener. The land is in mostly sloping grasslands and is suitable for some livestock, or agricultural crop. River view from some areas. Large rock outcrop has impressive views and exciting hiking adventures. No GST. (id:63869)
Property Details
|
MLS® Number
|
10363704 |
|
Property Type
|
Single Family |
|
Neigbourhood
|
Rock Crk. & Area |
|
Amenities Near By
|
Schools, Ski Area |
|
Community Features
|
Rural Setting |
|
Features
|
Balcony |
|
Parking Space Total
|
6 |
|
View Type
|
Mountain View |
Building
|
Bathroom Total
|
4 |
|
Bedrooms Total
|
5 |
|
Appliances
|
Refrigerator, Dishwasher, Dryer, Washer, Oven - Built-in |
|
Basement Type
|
Full |
|
Constructed Date
|
2007 |
|
Construction Style Attachment
|
Detached |
|
Exterior Finish
|
Vinyl Siding |
|
Fireplace Present
|
Yes |
|
Fireplace Total
|
1 |
|
Fireplace Type
|
Free Standing Metal |
|
Heating Fuel
|
Electric |
|
Heating Type
|
Baseboard Heaters, See Remarks |
|
Roof Material
|
Metal |
|
Roof Style
|
Unknown |
|
Stories Total
|
2 |
|
Size Interior
|
4,354 Ft2 |
|
Type
|
House |
|
Utility Water
|
Dug Well |
Parking
Land
|
Acreage
|
Yes |
|
Land Amenities
|
Schools, Ski Area |
|
Sewer
|
Septic Tank |
|
Size Irregular
|
81.54 |
|
Size Total
|
81.54 Ac|50 - 100 Acres |
|
Size Total Text
|
81.54 Ac|50 - 100 Acres |
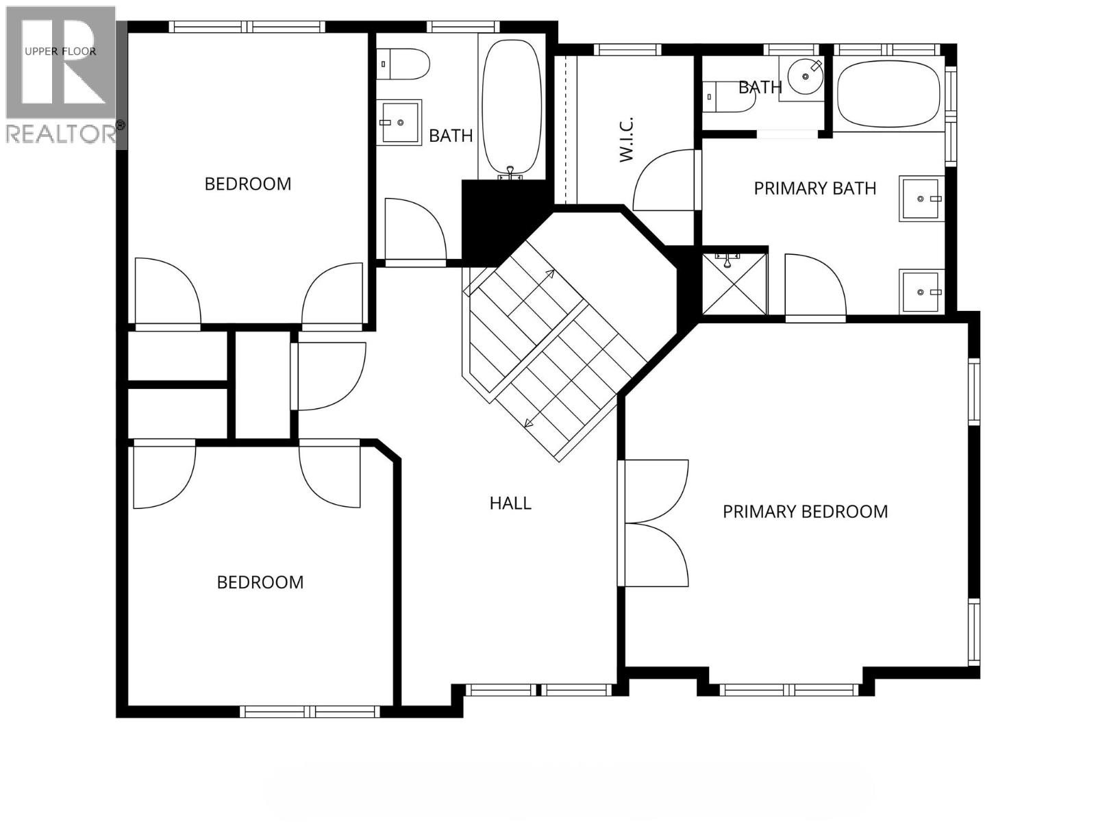
Rooms
| Level |
Type |
Length |
Width |
Dimensions |
|
Second Level |
Primary Bedroom |
|
|
15'0'' x 13'0'' |
|
Second Level |
Den |
|
|
10'0'' x 10'0'' |
|
Second Level |
Bedroom |
|
|
11'0'' x 11'0'' |
|
Second Level |
Bedroom |
|
|
13'0'' x 10'0'' |
|
Second Level |
3pc Bathroom |
|
|
Measurements not available |
|
Second Level |
6pc Bathroom |
|
|
Measurements not available |
|
Basement |
Workshop |
|
|
22'0'' x 12'0'' |
|
Basement |
Recreation Room |
|
|
16'0'' x 16'0'' |
|
Basement |
Other |
|
|
16'0'' x 10'0'' |
|
Basement |
Bedroom |
|
|
13'0'' x 11'0'' |
|
Basement |
Bedroom |
|
|
13'0'' x 11'0'' |
|
Basement |
3pc Bathroom |
|
|
Measurements not available |
|
Main Level |
Living Room |
|
|
14'0'' x 12'0'' |
|
Main Level |
Laundry Room |
|
|
8'0'' x 7'0'' |
|
Main Level |
Kitchen |
|
|
13'0'' x 13'0'' |
|
Main Level |
Family Room |
|
|
16'0'' x 13'0'' |
|
Main Level |
Dining Nook |
|
|
10'0'' x 9'0'' |
|
Main Level |
Dining Room |
|
|
12'0'' x 10'0'' |
|
Main Level |
Den |
|
|
11'0'' x 10'0'' |
|
Main Level |
3pc Bathroom |
|
|
Measurements not available |
Utilities
https://www.realtor.ca/real-estate/28896918/1670-hulme-creek-road-rock-creek-rock-crk-area